項目名稱:極物建筑設計咨詢(上海)有限公司
英文名稱:JW (SHANGHAI) ARCHITECTURE DESIGN&CONSULTING CO.LTD
項目地址:中國上海市
項目面積:390m2
采購金額:98萬
站在品牌營銷與用戶線上線下完美體驗的高度,上海辦公家具廠家——碧江辦公家具始終都將客戶的個性化需求以及審美體驗放在設計最前沿。不知道是我們的營銷口碑做得非常好還是我們真正將用戶體驗做到了最極致化,在這個時間里很多上海辦公家具同行的訂單都紛紛“告捷”了,然而我們碧江辦公家具卻又一次接到了來自上海極物建筑設計事務所的合作訂單。

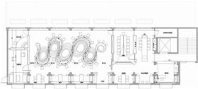
上海辦公家具廠家:JW & ASSOCIATES設計事務所辦公家具整體解決方案圖紙
因為極物建筑設計咨詢(上海)有限公司(JW&ASSOCIATES)是一個多元性的設計事務所,工作范圍包括室內設計、產品設計、建筑設計等。所以他們要求我們在給他們提供整套辦公家具解決方案時就要從辦公場所的多元性進行全方面來考慮。
上海辦公家具廠家——碧江辦公家具在對其構思之初就在尋找一種方式處理辦公環境,希望能將激烈的情感包裹其中,也可以讓平淡與激情并存,以創造出一個全新的獨特空間。拋棄一些繁雜的裝飾及過多的色彩,將功能和實用放在首位,追尋設計最初的本質。
上海辦公家具廠家——碧江辦公家具最終敲定下來的整體辦公家具解決方案是:讓辦公室的內部空間以一種特殊造型的辦公桌,給予觀者視覺沖擊力,在功能上也充分滿足一個公司的功能需求,竹林形成了天然氧吧,在空間上也形成一種分隔,分割著區域,隔而不段,讓空間更加富有層次;簡單的造型及本身的結構構成了空間的現代簡約感,材質本身的質感和顏色顯的更加溫暖,竹林也讓空間更加富有趣味。入口的接待臺由制作辦公桌的廢棄的材料組成,環保再利用也是我們設計的一個方向,地面和餐吧臺的TK樹脂材料水墨自由的流動在空間里,既生動又有韻味。下面就讓我們一起來看看上海辦公家具廠家——碧江辦公家具是如何來為JW & ASSOCIATES設計事務所打造整體高端辦公家具環境的!
明代風格新中式實木大班臺楠木總裁辦公桌
時尚總裁木質油漆大班臺
時尚現代老板辦公桌,老板辦公桌定制廠家
時尚美觀經理膠板辦公桌