眾所周知,上海這座國際性大都市的每一平米的土地都可以用寸土寸金來形容,我想這點對于那些上海企業家們來說是最能體會得到的。上海辦公家具廠家——碧江辦公家具網小編介紹說,很多辦公企業在創業初期都面臨著種種資金上的問題,所以他們在一開始都會選擇相對比較小點的辦公空間。
面對狹小的辦公空間,我們又該如何來打造一個高端辦公家具整體環境呢?想必這個問題一直都是那些成長型企業法人倍感煩惱的問題,到底該找上海哪家辦公家具廠家來幫我們一站式解決辦公家具最好呢?
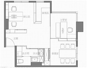
您知道嗎?其實小小的辦公空間也可打造成創意工業風的!讓我們一起共同目睹一下上海辦公家具廠家——碧江辦公家具是如何將47平米的辦公空間打造成創意工業風的?
舍棄掉那些繽紛繁雜的可以裝飾品,將辦公家具空間環境定位于醇厚美感的風格本質之上。在最大程度上保留既有空間毛坯狀態的自然原味裸妝的同時,上海辦公家具廠家——碧江辦公家具設計團隊順勢將工業風主題融入了這個僅僅只有47平米的辦公空間中,搭配上鐵件、灰玻的輕透屬性,激起兒時《讓我們蕩起雙槳》般的會議,讓空間設計以辦公家具為載體,得以靈感啟發。
上海辦公家具廠家——碧江辦公家具在對這個47m2的辦公空間打造的初期,就以水管與層板結合,結合巧妙構思,最終形成了一個展示型端景,在最大化節約空間設計及裝修成本的同時,讓原本粗糙的毛坯得以有效利用且形成一種簡約時尚。在這個空間里,我們能看到的是原生態報紙的再次利用,將廢棄的報紙加以利用,搖身一變就給這個狹小的辦公空間來了一個華麗的蛻變。











對于上海辦公家具廠家——碧江辦公家具而言,即便我們成就了一個又一個辦公家具整體解決方案,或者說我們打造了一個又一個不同主題的辦公空間,但是我們碧江辦公家具品牌營銷團隊卻從未止步:我們要成為一個能夠存活百年的品牌企業,一個專注于辦公家具品牌,一個引領辦公家具時尚革命的原創設計品牌。與此同時,我們相信我們將會見證更多大中型企業辦公時的幸福與喜悅!
上海辦公家具廠家——碧江辦公家具,您身邊的高端辦公家具整體解決方案專家!

明代風格新中式實木大班臺楠木總裁辦公桌
時尚總裁木質油漆大班臺
時尚現代老板辦公桌,老板辦公桌定制廠家
時尚美觀經理膠板辦公桌