2014 上海辦公家具最Loft設計
所謂Loft,即是“在屋頂之下、存放東西的閣樓”的意思。上海是一座寸土寸金的魔都,對于那些外國人來到這座城市,更多關注的并不是那些個5A+級別的現代高端辦公樓,而更多的是舊式廠房亦或是古老的樓宇,他們更多看中的其實就是樓層頂部的閣樓,即我們這里所說的Loft。
其實,在我們的現實辦公生活中,loft改造的辦公室我們并不常見。下面,就讓我們一起跟隨上海辦公家具品牌——碧江家具小編一起走進由上海碧江辦公家具一手打造的Loft現代辦公室吧!



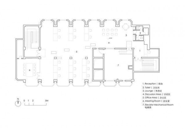
碧江上海辦公家具,應客戶需求,對上海市中心地段的一棟舊空間重新設計并改造,由于該空間的頂層是加建的閣樓式倉庫,就這樣一組loft風格的辦公室空間設計裝修效果圖得以呈現給廣大的辦公家具采購商們!碧江上海辦公家具loft辦公空間設計理念通過把握建筑材料的搭配,創造了舊倉庫空間的新模樣——湛然一新的loft辦公空間。










在碧江上海辦公家具小編眼里,Loft的空辦公間有非常大的靈活性,人們可以隨心所欲地創造自己夢想中的家、夢想中的生活,絲毫不會被已有的機構或構件所制約。都市辦公族們可以讓自己的辦公空間完全開放,也可以對其分割,從而使它蘊涵個性化的審美情趣。從此,粗糙的柱壁,灰暗的水泥地面,裸露的鋼結構已經脫離了舊倉庫的代名詞,一間間其貌不揚的舊式廠房里,一股新的氣息正在涌動,這就是Loft辦公生活。工作和居住不必分離,可以發生在同一個大空間中,廠房和住宅之間出現了部分重疊。Loft辦公生活方式使居者即使在繁華的都市中,也仍然能感受到身處郊野時那樣不羈的自由。
這個loft辦公空間中保留了大量原先舊倉庫留下的痕跡,但是實際的感覺與功能卻是一個現代辦公室空間。
想要比其他辦公企業擁有更好的辦公環境?選擇碧江上海辦公家具就沒錯啦,數十位國內外現代高端辦公環境設計界的的王牌設設計師,領銜精英團隊,只有你想不到的,沒有他們做不到!如果你的公司買了Loft型的辦公空間,那你也許就賺到了!來看看2014年最流行的辦公閣樓設計,打造完美的生活方式!連小編都不得不說一句,你真的值得擁有!
————————碧江辦公家具,您身邊的上海辦公家具定制專家————————
上海碧江辦公家具:打造高端辦公家具第一品牌!
碧江辦公家具微信:bj2028
上海辦公家具(碧江)官網:http://www.xyxiao.com/
碧江預約熱線:400-886-2028
動動你的小指頭,掃以下微信二維碼,關注碧江家具,聯系碧江家具。
即可獲得最高端辦公家具整體解決方案!

你是否正在搜索:上海辦公家具 | 上海辦公家具廠 | 上海辦公家具公司 | 上海辦公家具定制 | 上海辦公家具品牌 | 上海辦公家具設計
相關資訊
- 辦公家具都有哪些?
- 如何挑選辦公家具
- 浩爽制冷集團_合作案例_上海碧江辦公家具
- 辦公桌辦公家具定制,找廠家【碧江家具】
- 居家辦公家具訂制哪家好?【碧江家具】
- 你別來,我無恙!抱歉!非常時期!【碧江家具】
- 碧江家具怎么樣?親身感受【碧江家具】
- 上海的朋友看過來,安利一家辦公家具定制廠家【碧江家具】
- 最新工程案例,辦公家具整體解決方案【碧江家具】
- 辦公室小清新,辦公家具定制方案中心【碧江家具】
最新產品
同類文章排行
- 辦公家具都有哪些?
- 如何挑選辦公家具
- 辦公室辦公椅選舒服的!碧江家具!
- 選擇辦公椅轉椅,細節決定質量,碧江家具
- 辦公椅黑色弓形,上海松江區一家公司購買的椅子,碧江家具
- 老板辦公桌簡約風,碧江家具
- 一款深受年輕人喜歡的椅子!碧江家具
- 隔斷式辦公桌多少錢?碧江家具
- 實木辦公椅生產廠家,找上海松江區碧江家具
- 盤點網布辦公椅對身體的幾大好處,碧江家具
最新資訊文章
您的瀏覽歷史







