上海碧江辦公家具網:辦公家具品牌廠家用經典打造上海1305工作室

項目名稱:上海1305工作室
項目地址:上海靜安區武定路(石庫門大樓內)
項目面積:306m2
打造團隊:上海碧江辦公家具網
采購金額:72萬


說起石庫門這個名詞,我相信但凡喝過黃酒的人對這個名詞都是耳熟能詳的。今天上海辦公家具品牌廠家——碧江辦公家具網小編在這里要說的并不是石庫門黃酒,我們在這里說的卻是有著數百年歷史的石庫門這一上海經典建筑大樓里的一個現代時尚的1305工作室。
1305工作室位于上海靜安區武定路的石庫門大樓內,306m2的空間將傳統與現代結合,給人的第一印象就是如此莊重的石庫門大樓內竟然會出現如此具有現代時尚創新的空間,真的會讓我們大開眼界,贊嘆不已。下面就讓我們跟隨上海辦公家具品牌廠家——碧江辦公家具網小編的腳步一起踏進1305工作室,共同領略、感悟一下這個鬧市深處的恬靜養身之地。





據上海辦公家具品牌廠家——碧江辦公家具網小編介紹說,在1305工作室無限空間里,可以說這里的辦公家具并不是為了辦公而量身設計打造的,時裝秀、藝術展、雞尾酒會甚至專業的論壇講座在此舉辦都不在話下。看似異常傳統的外墻,走進去你會發現里面的世界真是傳統與現代最beautiful搭配,可以說無限接近傳統與現代的平衡狀態: 白色為底,木質搭配,粗糙混凝土與簡潔的空間刻意造成對比,室內裝飾簡單卻十分的靈活,像一杯白開水,卻能散發無限的可能。
眾所周知,在我們現實生活中,尤其在這個有著“魔都”之稱的鋼筋混凝土的大上海,辦公室設計一直以一種固定模式出現在大家的面前,是空間制約了設計師的想法?還是辦公空間中所必須要的所謂各個固定模式制約了設計師?也或許是為了迎合甲方刁鉆蠻橫的各種想法束縛了設計師?但是,這一次,對上海碧江辦公家具網整個營銷團隊而言,雖說這里沒有了昔日的那些約束,但確實十分考驗我們的整個團隊的能力。無論是設計能力、生產能力、銷售能力還是團隊配合默契等等等等。
上海辦公家具品牌廠家——碧江辦公家具網小編介紹,這里的許多上海人家依然過著老上海的生活方式,每天與他們為鄰,設計師體會到真正的石庫門文化。在這個306平米的空間中,如何安排這么多各式各樣的創意人員,就好像在老式石庫門中居住著眾多老上海人一樣,如何劃分這些空間及使用,避免填滿空間的模式,便成了設計的首要任務。設計師們在一起應該是無拘無束,天馬行空的,如果固定的把所需要的各個功能空間安插進去,便成了填滿空間。設計師認為無論怎樣的填充都滿足不了使用功能,設計師想到要創造空間。
在整個上海碧江辦公家具團隊的密切配合商討之下,“一杯水”成為了我們整個團隊的設計觸角。當一杯水在我們面前,真真切切,大家都以為它真實存在,如果把一杯水倒掉,“一杯水”馬上不存在了,只有“玻璃杯”存在。可見,所謂的“一杯水”其實是由“玻璃杯+水”組合而成的。進一步細究,“玻璃杯”也不存在,玻璃杯是由玻璃構成的,而玻璃是由海沙,石英砂巖粉,純堿,白云石等,經過高溫燒制而成,所以并沒有一個不變的叫做“玻璃”的客體存在。


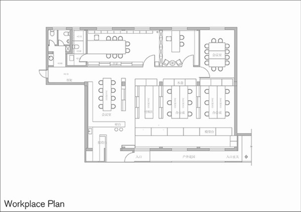
工作——如同一杯水,工作時的狀態,“杯中”便看到所謂的辦公桌,文件柜等等,但無論是辦公桌還是文件柜,設計師設計一個精算好的空間模數,自由組合,滿足空間中作為辦公空間未來5年甚至10年后的使用需求,由最初兩人時的使用空間變化直至可以滿足30人以上同時辦公的可能性。

聚會——聚會是設計師們在一起經常舉辦的,每到周末,空間變化成為另一番景象,當做辦公空間中使用的前臺接待臺變為酷炫的DJ臺,擺滿各種酒水的長吧臺,7米長的投影演繹各種迷幻圖像。

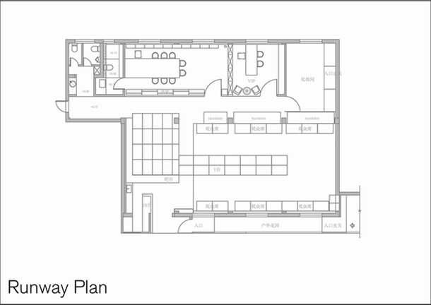
走秀——設計師設計的用于儲藏的模數木盒可瞬間搭出走秀T臺,周末約三五十好友們一起舉辦一場服裝設計師朋友自己的小型設計成果展示秀,自娛自樂。

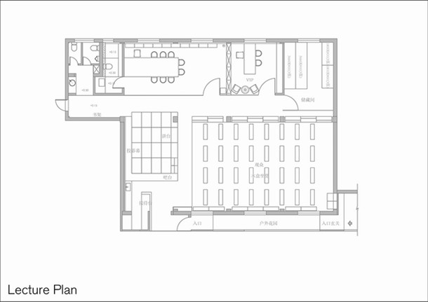
演講——兩種模數的白色木架由書架變為演講所需的坐凳,而高15公分和30公分兩種規格橡木盒堆疊成為高45公分之講臺,滿足50-100人左右的小型演講報告會,也是所謂的設計師們切磋的平臺,也是設計師自我陶醉,滿足虛榮心的試驗場。


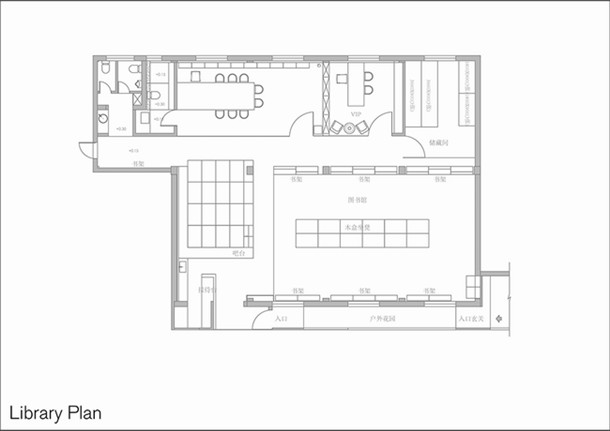
圖書館——所有的書架疊起,空間中變身成為一個小型圖書館,當然這種功能在現在只有306平米的空間中還很奢侈,但是設計師可以創造空間,設計師置身于自己絞盡腦汁創造出稱之為圖書館的空間中,或許是過一把沒有機會做一個圖書館的設計之癮,而也或許是設計師在滿足自己虛榮心的又一個意淫行為而已。


畫展——當周末空間不再承擔辦公室的空間任務時,可以變身成為展廳,可以是畫展,也可以是家具展,也或許是建筑模型展等等。






對于1305工作室而言,這只是上海辦公家具品牌廠家——碧江辦公家具在全國數千例工程案例乃至數以萬計的辦公空間打造案例中一個,對于我們碧江辦公家具人而言,我們的腳步并沒有因為這些而停留,我們的觸角會根據不同的客戶個性化需求來引發且重新定位,找到一個更好的設計方案來實現您以及您公司的品牌價值。碧江辦公家具——您身邊的高端辦公家具整體解決方案專家!
相關資訊
- 碧江家具怎么樣?親身感受【碧江家具】
- 我和我的祖國,我們陪您成長【碧江家具】
- 重新定義辦公空間,商務從一張適合的前臺開始【碧江家具】
- 上海定制辦公家具要怎樣選擇廠家
- 上海辦公家具生產廠家哪家好
- 魅族科技
- 炎炎夏日,讓我們聆聽上海碧江辦公家具廠與魅族的合作情緣
- 上海辦公家具廠家——碧江辦公家具為您打造創意辦公空間
- 上海辦公家具廠家:如果海洋量子號跟碧江合作會怎樣?
- 上海辦公家具廠家:網購辦公家具請認真甄別,提防商業欺騙
最新產品
同類文章排行
- 辦公家具都有哪些?
- 如何挑選辦公家具
- 辦公室辦公椅選舒服的!碧江家具!
- 選擇辦公椅轉椅,細節決定質量,碧江家具
- 辦公椅黑色弓形,上海松江區一家公司購買的椅子,碧江家具
- 老板辦公桌簡約風,碧江家具
- 一款深受年輕人喜歡的椅子!碧江家具
- 隔斷式辦公桌多少錢?碧江家具
- 實木辦公椅生產廠家,找上海松江區碧江家具
- 盤點網布辦公椅對身體的幾大好處,碧江家具
最新資訊文章
您的瀏覽歷史







